RENOVATION
Hutt Valley
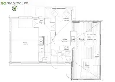
The Design Brief
A family with two young children needed extra space with improved flow. They had wanted an extension of a modern style that adds to the character of the home. The design provided for excellent levels of insulation even with exposed rafters to the ceiling.
The Design Brief
A family with two young children needed extra space with improved flow. They had wanted an extension of a modern style that adds to the character of the home. The design provided for excellent levels of insulation even with exposed rafters to the ceiling.
Consent Required
Building consent – Hutt City Council
Other Consultants Involved
Structural Engineer – Certa Engineering
Builder – Redefine Renovations
LOOKING AT BUILDING OR RENOVATING?
Book a Free Consultation.
Please complete the form on the Contact page and a member of our team will be in touch with you promptly.
