NEW BUILD
Lake Ferry
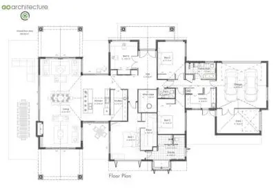
The Design Brief
The owners are a couple who are relocating to the Wairarapa to their olive and grape growing block. They were after a large home that would easily accommodate adult children coming to stay and entertaining large groups of visitors.
They had a good idea of the style they were after and some plans they were not quite happy with. I worked with them to achieve everything on their wish list.
It is currently at council for consenting.
The Design Brief
The owners are a couple who are relocating to the Wairarapa to their olive and grape growing block. They were after a large home that would easily accommodate adult children coming to stay and entertaining large groups of visitors.
They had a good idea of the style they were after and some plans they were not quite happy with. I worked with them to achieve everything on their wish list.
It is currently at council for consenting.
Consent Required
Building consent – South Wairarapa District Council
Other Consultants Involved
Structural Engineer – Hewison Engineering Limited
Truss Designer – Carter Holt Harvey
Builder – CB Surridge Building Ltd
Client Feedback
Content goes here.
