Renovation
Pinehaven Renovation
The Design Brief
This Upper Hutt 1965 3-bedroom home had remained in its original state for most of its life, barring a cheap and cheerful refresh for tenants a few years prior. Our clients wanted to transform their house into a comfortable, warm and modern home for their family of 5. We converted the unused attached single garage into a master bedroom, en suite, walk-in wardrobe and study area, opened up the living areas and added a north facing deck and french doors for better indoor/outdoor flow, to maximise living space and sunshine.
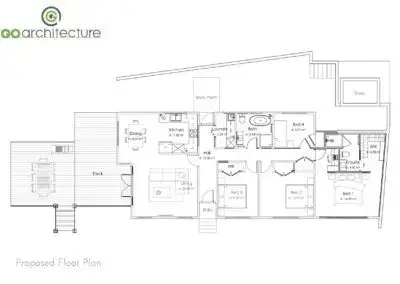
The Design Brief
This Upper Hutt 1965 3-bedroom home had remained in its original state for most of its life, barring a cheap and cheerful refresh for tenants a few years prior. Our clients wanted to transform their house into a comfortable, warm and modern home for their family of 5. We converted the unused attached single garage into a master bedroom, en suite, walk-in wardrobe and study area, opened up the living areas and added a north facing deck and french doors for better indoor/outdoor flow, to maximise living space and sunshine.
Consent Required
Building Consent
Other Consultants Involved
Footprint Building Company
Client Feedback
From our very first contact Paula was totally professional, yet at the same time very down to earth. She really listened to what we wanted, and so was able to provide us with design solutions that worked both aesthetically and functionally. Her organised processes provided us with both accurate time frames and pricing for her work, and meant no unpleasant surprises in these areas. We are loving our new spaces as we bring Paula’s ideas for our house to life and do not hesitate in recommending her to anyone who wants an architectural designer that will give them the best of everything — great design, practical living and no sleepless nights along the way.
LOOKING AT BUILDING OR RENOVATING?
Book a Free Consultation.
Please complete the form on the Contact page and a member of our team will be in touch with you promptly.
